Очаровательный дом в самом сердце Грасиа, со спальней с двуспальной кроватью и кабинетом.
Основные особенности
- Классическая архитектура
- Естественное освещение
- Общая терраса
- система сигнализации
- Система кондиционирования
- Рядом с международными школами
- Отопление
- Открытая кухня
- Оборудованная кухня
- Двойное остекление
- Гардеробная комната
- Встроенные шкафы
- Виды на город
- Балкон
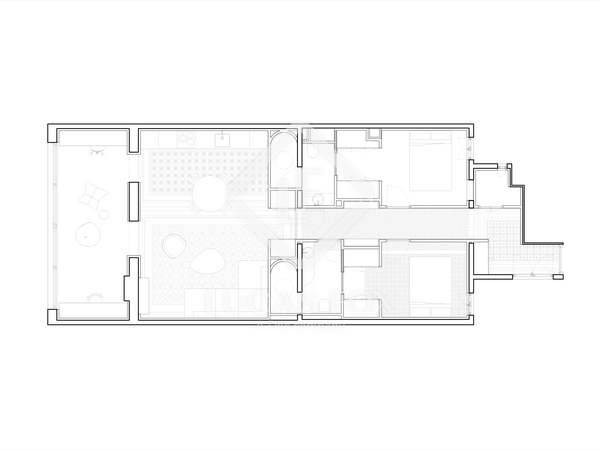
- План этажа 48m²
То, что нужно знать о данном квартира
Недвижимость для временной аренды.
Эти изысканные апартаменты расположены в самом сердце знаменитого района Грасиа, между площадями Пласа-дель-Диамант и Пласа-дель-Соль. Эти двухкомнатные апартаменты полностью меблированы и готовы к заселению. Они идеально подойдут студентам или парам, предлагая идеальное сочетание комфорта, стиля и яркой энергии одного из самых знаковых районов Барселоны.
При входе вас встречает просторная и современная кухня, оборудованная всей необходимой техникой. Большой стол, который можно использовать как центральный остров, дополненный табуретами, создаёт идеальное место как для обеда, так и для чашечки кофе.
Рядом с кухней расположена просторная ванная комната с ванной, стены которой украшены великолепной керамической плиткой, придающей помещению нотку стиля и изысканности.
Слева от квартиры находится внутренняя спальня с двуспальной кроватью, очень тихое пространство, украшенное красивыми обоями с цветочным рисунком, которые создают уютную и расслабляющую атмосферу.
Справа от дома находится вторая спальня, которая используется как кабинет. Она оборудована письменным столом и стулом, идеально подходящими для работы из дома. Сразу за этой комнатой находится просторная гардеробная, которая позволяет максимально эффективно использовать пространство для хранения вещей.
В доме есть два балкона с видом на тихую улицу, что позволяет наслаждаться свежим воздухом и видом на окрестности. Близость к площади Пласа-дель-Диаманте обеспечивает легкий доступ к различным магазинам, барам, ресторанам и различным зонам отдыха.
В здании нет лифта.
Эта недвижимость идеально подходит для тех, кто хочет окунуться в жизнь и энергию района Грасия, чтобы насладиться стильным и функциональным домом в непревзойденном месте.
Сдается недвижимость во временную аренду.
В соответствии с Законом 12/2023 и Законом 18/2007 сообщаем вам, что:
Недвижимость для временной аренды
Владелец не имеет статуса крупного держателя.
Депозит в размере 2 месяцев + 1 дополнительная гарантия.
44 полезных метра.
Подключение к воде и электричеству (в стоимость не входит).
Формула обновления арендной платы не применяется
Дополнительно
- Получатель
- Бездельничать
- открытая кухня
- Ванная комната с ванной
- Спальня с двуспальной кроватью
- Кабинет + гардеробная
- Балконы
Планировка
- Получатель
- Бездельничать
- открытая кухня
- Ванная комната с ванной
- Спальня с двуспальной кроватью
- Кабинет + гардеробная
- Балконы
Грасия, Провинция Барселона: 6Местонахождение и месторасположение данной жилой недвижимости
Забавный; алмазный квадрат
Свидетельство об энергоэффективности недвижимого имущества
Energy Certificate : In process
Index R.P.LL.
No data available for this location.
Похожие объекты недвижимости в аренду Барселона
Не нашли то, что искали?











































































































































































































